Strategiczne rozmieszczenie czujek alarmowych w domu to nie tylko kwestia techniki, ale przede wszystkim sztuki planowania, która ma realny wpływ na bezpieczeństwo Twojej rodziny i majątku. W tym praktycznym poradniku, jako Łukasz Wójcik, dzielę się moim doświadczeniem, aby pomóc Ci zrozumieć, gdzie i jak należy zamontować poszczególne elementy systemu alarmowego. Prawidłowe podejście do tego zadania jest kluczowe dla maksymalnej skuteczności ochrony i pozwala uniknąć typowych błędów, które mogłyby osłabić cały system.
Skuteczne rozmieszczenie czujek alarmowych to klucz do bezpiecznego domu poznaj zasady i unikaj błędów.
- Ochrona obwodowa (kontaktrony) to pierwsza linia obrony na wszystkich oknach i drzwiach zewnętrznych.
- Ochrona wewnętrzna (czujki PIR/dualne) wykrywa ruch w kluczowych strefach komunikacyjnych i pomieszczeniach.
- Czujki PIR montuj w narożnikach na wysokości 2.2-2.4m, kierując je w stronę potencjalnego wejścia, unikając źródeł ciepła i słońca.
- Do "trudnych" pomieszczeń (garaż, kotłownia, salon z kominkiem) wybieraj czujki dualne (PIR+MW) dla większej odporności na fałszywe alarmy.
- Pamiętaj o czujkach PET dla domów ze zwierzętami oraz akustycznych czujkach zbicia szyby w pomieszczeniach z dużą liczbą przeszkleń.
- Nie zapomnij o czujkach dymu, czadu i gazu, które chronią życie i zdrowie domowników.
Strategiczne rozmieszczenie czujek: fundament bezpieczeństwa Twojego domu
Wielu moich klientów pyta, czy wystarczy po prostu zamontować kilka czujek w losowych miejscach. Zawsze odpowiadam, że prawidłowe i przemyślane rozmieszczenie czujek jest absolutnie kluczowe dla skuteczności całego systemu alarmowego. To nie tylko kwestia liczby urządzeń, ale przede wszystkim ich strategicznego umiejscowienia. Bez odpowiedniego planu, nawet najdroższy system może okazać się dziurawy i podatny na ominięcie przez intruza. Moim zadaniem jest pomóc Ci stworzyć system, który będzie działał jak szwajcarski zegarek precyzyjnie i niezawodnie.
Czym jest ochrona obwodowa i przestrzenna? Poznaj dwie linie obrony
Kiedy mówimy o zabezpieczeniu domu, musimy myśleć o nim w kategoriach warstw. Pierwszą i niezwykle ważną warstwą jest ochrona obwodowa. Polega ona na montażu kontaktronów, czyli czujek magnetycznych, na wszystkich oknach i drzwiach zewnętrznych w tym drzwiach tarasowych, balkonowych i garażowych. Jej zadaniem jest wykrycie próby włamania, zanim intruz w ogóle znajdzie się wewnątrz budynku. To daje nam najwcześniejsze ostrzeżenie i często wystarcza, by odstraszyć potencjalnego złodzieja.
Drugą, komplementarną warstwą jest ochrona wewnętrzna, nazywana również przestrzenną. Realizowana jest głównie przez pasywne czujki podczerwieni (PIR) oraz czujki dualne (PIR+MW). Ich celem jest wykrycie ruchu wewnątrz chronionych stref, gdy intruzowi uda się już sforsować ochronę obwodową. Czujki te działają jak "oczy" systemu alarmowego, monitorując kluczowe pomieszczenia i drogi komunikacyjne w domu, aby nie zostawić żadnej luki.
Najczęstsze błędy, które osłabiają system alarmowy jak ich uniknąć?
W mojej praktyce spotkałem się z wieloma błędami, które znacząco obniżały skuteczność systemów alarmowych. Oto te najczęstsze, których należy unikać:
- Zbyt mała liczba czujek: Prowadzi do powstawania "martwych stref", które intruz może wykorzystać.
- Zły dobór typu czujki: Użycie standardowej czujki PIR w pomieszczeniu o trudnych warunkach (np. garaż) zamiast czujki dualnej to proszenie się o fałszywe alarmy.
- Nieodpowiednie miejsca montażu: Umieszczenie czujki przy grzejniku, naprzeciwko okna lub w miejscu narażonym na przeciągi to gwarancja problemów.
- Zasłanianie pola widzenia: Meble, zasłony czy nawet duże rośliny doniczkowe mogą blokować pole detekcji czujki, tworząc lukę w ochronie.
- Pomijanie ochrony obwodowej: Koncentrowanie się tylko na czujkach wewnętrznych i ignorowanie kontaktronów to duży błąd, ponieważ tracimy cenne wczesne ostrzeżenie.
Zasada "warstw ochronnych": od ogrodzenia po sypialnię
Myśląc o bezpieczeństwie domu, zawsze zalecam podejście oparte na "warstwach ochronnych". To jak budowanie fortecy, gdzie każda kolejna bariera utrudnia intruzowi dostęp. Zaczynamy od ochrony obwodowej kontaktrony na wszystkich oknach i drzwiach to pierwsza, zewnętrzna warstwa. Następnie przechodzimy do wnętrza, gdzie czujki ruchu (PIR lub dualne) tworzą kolejne warstwy w strategicznych punktach, takich jak korytarze, hole czy salony. Możemy również wydzielić strefy, na przykład "strefę dzienną" (parter) i "strefę nocną" (piętro), co pozwala na uzbrojenie tylko części alarmu, gdy domownicy śpią. Taka wielowarstwowa ochrona znacznie zwiększa szanse na szybkie wykrycie intruza i skuteczną interwencję.

Ochrona obwodowa: Twoja pierwsza i najważniejsza tarcza
Ochrona obwodowa to absolutna podstawa każdego skutecznego systemu alarmowego. To ona ma za zadanie wykryć próbę włamania, zanim intruz w ogóle znajdzie się wewnątrz Twojego domu. Traktuję ją jako pierwszą i najważniejszą tarczę, która daje nam najwcześniejsze ostrzeżenie i często zniechęca do dalszych działań.
Gdzie montować kontaktrony? Kompletna lista newralgicznych punktów
Aby ochrona obwodowa była skuteczna, kontaktrony muszą znaleźć się w każdym punkcie, przez który intruz mógłby dostać się do środka. Oto kompletna lista newralgicznych miejsc:
- Wszystkie okna zewnętrzne, niezależnie od ich rozmiaru czy położenia.
- Drzwi wejściowe do domu.
- Drzwi tarasowe i drzwi balkonowe.
- Drzwi garażowe, zwłaszcza te prowadzące bezpośrednio do wnętrza domu.
- Wszelkie inne drzwi zewnętrzne, np. do piwnicy czy pomieszczenia gospodarczego.
Drzwi wejściowe, tarasowe i balkonowe jak je skutecznie zabezpieczyć?
Drzwi wejściowe, tarasowe i balkonowe to najczęstsze drogi, którymi intruzi próbują dostać się do domu. Dlatego ich zabezpieczenie jest priorytetem. Na każdych z tych drzwi bezwzględnie montujemy kontaktrony. Ważne jest, aby były one zainstalowane w taki sposób, by sygnalizowały otwarcie drzwi już przy minimalnym uchyleniu. W przypadku drzwi tarasowych czy balkonowych, które często są wykonane z lekkich materiałów, warto rozważyć dodatkowe zabezpieczenia, takie jak czujki zbicia szyby, jeśli są to duże przeszklenia.
Czy każde okno potrzebuje kontaktronu? Praktyczne wskazówki
Zdecydowanie tak, każde okno zewnętrzne potrzebuje kontaktronu. Niezależnie od tego, czy jest to okno na parterze, czy na piętrze, czy jest małe, czy duże. Intruzi często wykorzystują okna na piętrze, licząc na to, że są one mniej chronione. Kontaktron wykryje próbę otwarcia okna, dając nam cenne sekundy na reakcję. Pamiętajmy, że ochrona obwodowa ma być kompleksowa, bez żadnych luk.
Czujki ruchu (PIR): oczy Twojego systemu alarmowego wewnątrz domu
Po zabezpieczeniu obwodu domu, przechodzimy do jego wnętrza. Tutaj na scenę wkraczają czujki ruchu, głównie pasywne czujki podczerwieni (PIR). To one stanowią "oczy" Twojego systemu alarmowego, monitorując wnętrze pomieszczeń i uzupełniając ochronę obwodową. Ich prawidłowe rozmieszczenie jest kluczowe, aby nie pozostawić intruzowi żadnej drogi ucieczki.
Złota zasada montażu: idealna wysokość i lokalizacja w narożniku
Istnieje pewna "złota zasada" montażu czujek PIR, którą zawsze powtarzam: montuj je w narożnikach pomieszczeń, na wysokości około 2,2-2,4 metra. Dlaczego? Takie umiejscowienie zapewnia najszersze pole widzenia czujki, pozwalając jej monitorować jak największą przestrzeń. Czujkę należy skierować w stronę potencjalnego wejścia (np. drzwi, okna), ale nie bezpośrednio na nie. Chodzi o to, aby intruz musiał przeciąć wiązkę detekcji, przemieszczając się przez pomieszczenie, a nie wchodząc prosto w nią. To zwiększa prawdopodobieństwo wykrycia ruchu.
Jak "patrzy" czujka PIR? Zrozumienie pola detekcji, by nie zostawić martwych stref
Czujka PIR działa na zasadzie wykrywania zmian temperatury w swoim polu widzenia. Kiedy ciepłe ciało (np. człowiek) przemieszcza się przez chłodniejsze otoczenie, czujka to rejestruje. Zrozumienie tego mechanizmu jest kluczowe, aby unikać "martwych stref" obszarów, w których czujka nie będzie w stanie wykryć ruchu. Dlatego tak ważne jest, aby pole widzenia czujki nie było zasłonięte. Oto, czego należy bezwzględnie unikać przy montażu czujek PIR:
- Miejsc w pobliżu źródeł ciepła (grzejniki, kominki, klimatyzatory) i miejsc narażonych na nagłe zmiany temperatury.
- Miejsc bezpośrednio nasłonecznionych, ponieważ słońce może powodować fałszywe alarmy.
- Montażu naprzeciwko okien, co może prowadzić do fałszywych alarmów od ruchu na zewnątrz.
- Miejsc, gdzie ruch powietrza jest intensywny (np. wyloty wentylacji).
- Zasłaniania pola widzenia czujki meblami, zasłonami czy roślinami.
Korytarze, hole i klatki schodowe absolutna konieczność ochrony dróg komunikacyjnych
Korytarze, hole, przedsionki i klatki schodowe to strategiczne punkty w każdym domu. Niezależnie od tego, jak intruz dostanie się do środka, najprawdopodobniej będzie musiał przez nie przejść, aby dostać się do innych pomieszczeń. Dlatego zabezpieczenie tych głównych dróg komunikacyjnych za pomocą czujek ruchu jest absolutną koniecznością. Czujka w holu na parterze i w korytarzu na piętrze to podstawa, która znacząco zwiększa szanse na wykrycie intruza i uruchomienie alarmu.
Jak zabezpieczyć salon i inne pokoje z dużą liczbą okien?
Salon, często będący sercem domu i miejscem przechowywania wartościowych przedmiotów, wymaga szczególnej uwagi. Jeśli w salonie znajduje się wiele okien lub duże przeszklenia (np. wyjście na taras), oprócz standardowej czujki PIR, warto rozważyć montaż akustycznych czujek zbicia szyby. Czujka PIR powinna być zamontowana w narożniku, tak aby monitorowała całe pomieszczenie. W przypadku, gdy salon jest połączony z kuchnią lub ma kominek, lepszym wyborem może okazać się czujka dualna, o której opowiem za chwilę.

Dobór odpowiedniej czujki do pomieszczenia: co, gdzie i dlaczego?
Nie ma jednej uniwersalnej czujki, która sprawdzi się w każdym miejscu. Rynek oferuje szeroki wachlarz rozwiązań, a kluczem do skutecznego systemu jest dopasowanie odpowiedniego typu czujki do specyfiki danego pomieszczenia. Dzięki temu zapewniamy maksymalną skuteczność ochrony i minimalizujemy ryzyko fałszywych alarmów, które potrafią być niezwykle irytujące.
Standardowy czujnik PIR: kiedy jest wystarczający?
Standardowe czujki PIR, czyli pasywne czujki podczerwieni, są najczęściej stosowanym typem i w większości przypadków są w zupełności wystarczające. Doskonale sprawdzają się w typowych pomieszczeniach mieszkalnych, takich jak sypialnie, pokoje dziecięce, gabinety czy korytarze, gdzie nie występują specyficzne wyzwania, takie jak nagłe zmiany temperatury czy intensywny ruch powietrza. Są niezawodne i ekonomiczne, stanowiąc trzon większości systemów alarmowych.
Czujka dualna (PIR + MW): w jakich "trudnych" pomieszczeniach jest niezbędna (garaż, kotłownia, salon z kominkiem)?
W niektórych pomieszczeniach standardowa czujka PIR może być podatna na fałszywe alarmy. Mowa tu o tak zwanych "trudnych" pomieszczeniach, gdzie występują gwałtowne zmiany temperatury, przeciągi lub inne czynniki mogące zakłócić pracę czujnika podczerwieni. W takich miejscach niezastąpione są czujki dualne, które łączą technologię podczerwieni (PIR) z detekcją mikrofalową (MW). Czujka dualna wygeneruje alarm tylko wtedy, gdy oba sensory (PIR i MW) wykryją ruch jednocześnie, co znacznie zwiększa jej odporność na fałszywe alarmy. Zalecam je do:
- Garaży, gdzie często występują zmiany temperatury i ruch powietrza.
- Kotłowni i innych pomieszczeń technicznych.
- Salonów z kominkiem lub dużymi przeszkleniami, które mogą być źródłem nagłych zmian temperatury.
Posiadasz zwierzęta? Wszystko, co musisz wiedzieć o czujkach PET
Jeśli jesteś właścicielem psa, kota czy innego zwierzęcia domowego, z pewnością obawiasz się fałszywych alarmów wywołanych przez Twojego pupila. Rozwiązaniem są czujki PET (Pet Immune), które są odporne na ruch zwierząt domowych do określonej wagi (zazwyczaj do 15, 20 lub 25 kg, w zależności od modelu). Działają one w taki sposób, że ignorują ruch obiektów o masie poniżej ustalonego progu, jednocześnie skutecznie wykrywając ruch człowieka. Dzięki nim możesz spokojnie uzbroić alarm, nie martwiąc się o niepotrzebne interwencje.
Akustyczne czujki zbicia szyby: czy jedna wystarczy na cały salon?
Akustyczne czujki zbicia szyby to specjalistyczne urządzenia, które reagują na charakterystyczny dźwięk tłuczonego szkła. Są one niezwykle przydatne w pomieszczeniach z dużą liczbą okien lub rozległymi przeszkleniami, takimi jak salony czy ogrody zimowe. Zaletą tych czujek jest to, że jedna czujka może efektywnie chronić kilka okien w jednym pomieszczeniu, o ile znajdują się one w zasięgu jej mikrofonu. Montuje się je zazwyczaj na suficie lub ścianie, w odległości kilku metrów od chronionych okien. Stanowią doskonałe uzupełnienie kontaktronów i czujek ruchu.
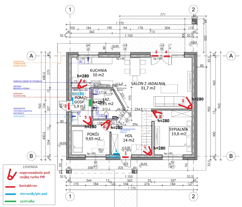
Plan rozmieszczenia czujek dla typowego domu jednorodzinnego: przykład
Teoria to jedno, ale jak to wszystko przełożyć na praktykę? Przygotowałem dla Ciebie przykład planu rozmieszczenia czujek w typowym domu jednorodzinnym. Mam nadzieję, że pomoże Ci to wizualizować i zastosować zdobytą wiedzę w Twoim własnym domu.
Parter: wiatrołap, hol, kuchnia i salon jak obstawić każdą możliwą drogę intruza?
Parter to strefa największego ryzyka, dlatego wymaga szczególnie starannego planowania:
- Wiatrołap i hol: Tutaj obowiązkowo montujemy czujkę ruchu (PIR). To pierwsza bariera po przekroczeniu progu, która wykryje intruza, jeśli uda mu się sforsować drzwi wejściowe.
- Kuchnia: Zazwyczaj wystarczy standardowa czujka PIR, zamontowana w narożniku, monitorująca całe pomieszczenie. Jeśli kuchnia jest otwarta na salon lub ma duże okna, rozważ czujkę dualną.
- Salon: To często pomieszczenie z wyjściem na taras i cennymi przedmiotami. Zalecam czujkę dualną (PIR+MW), szczególnie jeśli jest kominek lub duże przeszklenia. Dodatkowo, jeśli jest wiele okien, warto pomyśleć o akustycznej czujce zbicia szyby. Oczywiście, wszystkie okna i drzwi tarasowe muszą mieć kontaktrony.
- Wszystkie drzwi wejściowe, tarasowe i okna na parterze: Niezbędne są kontaktrony.
Garaż i pomieszczenie techniczne: specyfika ochrony i dobór czujek
Garaż i pomieszczenia techniczne (np. kotłownia, pralnia) to miejsca, gdzie warunki mogą być trudniejsze zmienna temperatura, wilgotność, a czasem nawet spaliny. Z tego powodu, zamiast standardowych czujek PIR, zdecydowanie zalecam montaż czujek dualnych (PIR+MW). Ich podwójna technologia detekcji zapewnia większą odporność na fałszywe alarmy wywołane przez czynniki środowiskowe. Pamiętaj również o kontaktronach na drzwiach garażowych i ewentualnych oknach.
Piętro/poddasze: dlaczego ochrona korytarza przy sypialniach jest kluczowa?
Na piętrze lub poddaszu kluczowym miejscem do zabezpieczenia jest korytarz prowadzący do sypialni. Montaż tam czujki ruchu (PIR) jest strategiczny. Dlaczego? Nawet jeśli intruz dostanie się do domu przez okno na piętrze (np. po drabinie), to aby dostać się do sypialni lub zejść na parter, będzie musiał przejść przez ten korytarz. Czujka w tym miejscu zadziała jak ostatnia linia obrony, zanim intruz zbliży się do miejsc, gdzie śpią domownicy.
Czym jest tryb nocny (strefowy) i jak rozmieścić czujki, by z niego korzystać?
Nowoczesne systemy alarmowe oferują niezwykle przydatną funkcję, jaką jest tryb nocny, zwany również ochroną strefową. Pozwala on na uzbrojenie tylko wybranych stref domu, podczas gdy inne pozostają rozbrojone. Na przykład, gdy domownicy śpią na piętrze, można uzbroić cały parter oraz ochronę obwodową, jednocześnie pozwalając na swobodne poruszanie się po piętrze. Aby móc korzystać z tej funkcji, należy zaplanować rozmieszczenie czujek w taki sposób, aby poszczególne pomieszczenia lub grupy pomieszczeń mogły być przypisane do osobnych stref. To zapewnia bezpieczeństwo bez ograniczania swobody poruszania się w nocy.
Nie tylko włamanie: jak rozmieścić czujki chroniące życie i zdrowie?
System alarmowy to nie tylko ochrona przed włamaniem. To również niezwykle ważna ochrona życia i zdrowia domowników. Czujki dymu, czadu i gazu są często niedoceniane, a ich rola w zapobieganiu tragediom jest nie do przecenienia. Traktuję je jako integralną część kompleksowego systemu bezpieczeństwa.
Czujniki dymu i ciepła: gdzie zamontować, by ostrzegły Cię na czas?
Czujniki dymu i ciepła to podstawa ochrony przeciwpożarowej. Ich prawidłowy montaż jest kluczowy dla wczesnego wykrycia zagrożenia. Zawsze zalecam montaż:
- Na suficie, ponieważ dym i ciepło unoszą się do góry.
- W holach i korytarzach, zwłaszcza tych prowadzących do sypialni, aby ostrzec domowników podczas snu.
- Na poddaszu, jeśli jest użytkowe lub znajdują się tam instalacje elektryczne.
- W kotłowni i innych pomieszczeniach, gdzie znajdują się urządzenia grzewcze lub elektryczne.
- W pobliżu kuchni, ale nie bezpośrednio nad kuchenką, aby uniknąć fałszywych alarmów od oparów gotowania.
Czujnik czadu (tlenku węgla): śmiertelne zagrożenie, prosta ochrona zasady montażu
Tlenek węgla, czyli czad, to cichy zabójca bezwonny i bezbarwny gaz, który może prowadzić do śmiertelnych zatruć. W domach z kominkiem, piecem gazowym, kotłem na paliwo stałe czy podgrzewaczem wody, czujnik czadu jest absolutnie niezbędny. Montuje się go:
- Na wysokości głowy (około 1,5 metra), ponieważ czad ma gęstość zbliżoną do powietrza i miesza się z nim.
- W pobliżu źródeł potencjalnego zagrożenia (np. pieca, kominka), ale nie bezpośrednio nad nimi.
- W sypialniach, aby ostrzec śpiących domowników.
Czujniki gazu ziemnego i LPG: poznaj różnice w montażu
Czujniki gazu są kluczowe w domach z instalacją gazową. Ważne jest, aby pamiętać o różnicach w montażu, wynikających z właściwości fizycznych gazów:
- Czujniki gazu ziemnego: Gaz ziemny jest lżejszy od powietrza, dlatego w przypadku wycieku gromadzi się w górnych partiach pomieszczenia. Czujnik należy montować wysoko, pod sufitem, w pobliżu potencjalnych źródeł wycieku (np. kuchenki gazowej, pieca).
- Czujniki LPG (propan-butan): Gaz LPG jest cięższy od powietrza i w przypadku wycieku opada na podłogę. Czujnik należy montować nisko, przy podłodze, w pobliżu urządzeń zasilanych LPG.
Podsumowanie: stwórz mapę swojego bezpiecznego domu
Jak widzisz, kompleksowe i przemyślane planowanie rozmieszczenia czujek to podstawa skutecznego systemu alarmowego. Nie chodzi o to, by zamontować ich jak najwięcej, ale by każda z nich znalazła się w miejscu, gdzie będzie najbardziej efektywna. Zachęcam Cię do stworzenia własnej "mapy bezpieczeństwa" Twojego domu, zaznaczając na niej wszystkie newralgiczne punkty i planowane miejsca montażu czujek. To inwestycja w spokój i bezpieczeństwo Twoich bliskich.
Checklista: sprawdź, czy Twój plan rozmieszczenia czujek jest kompletny
Zanim uznasz swój plan za gotowy, przejdź przez tę checklistę, aby upewnić się, że niczego nie pominąłeś:
- Czy wszystkie okna i drzwi zewnętrzne mają kontaktrony?
- Czy w holach i korytarzach (na każdym piętrze) są czujki ruchu?
- Czy salon jest chroniony odpowiednią czujką (PIR lub dualną) i ewentualnie czujką zbicia szyby?
- Czy garaż i pomieszczenia techniczne mają czujki dualne?
- Czy wziąłeś pod uwagę zwierzęta domowe i zaplanowałeś czujki PET tam, gdzie to konieczne?
- Czy czujki PIR są zamontowane w narożnikach na odpowiedniej wysokości i skierowane we właściwą stronę?
- Czy uniknąłeś montażu czujek PIR w pobliżu źródeł ciepła, słońca czy naprzeciw okien?
- Czy zaplanowałeś czujki dymu i ciepła w strategicznych miejscach (sufit, hole, kotłownia)?
- Czy masz czujnik czadu w pobliżu źródeł zagrożenia i w sypialniach?
- Czy czujniki gazu (ziemnego/LPG) są zamontowane na właściwej wysokości?
- Czy Twój system pozwala na ochronę strefową (tryb nocny)?
Przeczytaj również: Jak otworzyć domofon Fermax kodem? Praktyczny przewodnik krok po kroku
Kiedy warto skonsultować się z profesjonalnym instalatorem?
Mimo że ten poradnik dostarcza solidnej wiedzy, są sytuacje, w których warto, a nawet należy, skorzystać z pomocy profesjonalnego instalatora systemów alarmowych. Jeśli masz duży dom o skomplikowanej architekturze, nietypowe rozwiązania budowlane, czy po prostu nie czujesz się pewnie w kwestii samodzielnego planowania, nie wahaj się. Doświadczony instalator nie tylko pomoże Ci dobrać odpowiednie urządzenia, ale także optymalnie je rozmieści, biorąc pod uwagę wszystkie specyficzne cechy Twojego domu. To inwestycja, która zapewni Ci spokój ducha i pewność, że Twój dom jest zabezpieczony na najwyższym poziomie.
